Architettura Residenziale







The project involves the redevelopment of a former engineering works used to process sheet metal, close to Lavender Hill, Clapham. The complex infill site embedded within a residential urban block, has been transformed into a residential development of nine dwellings accessed via an existing cobbled mews.
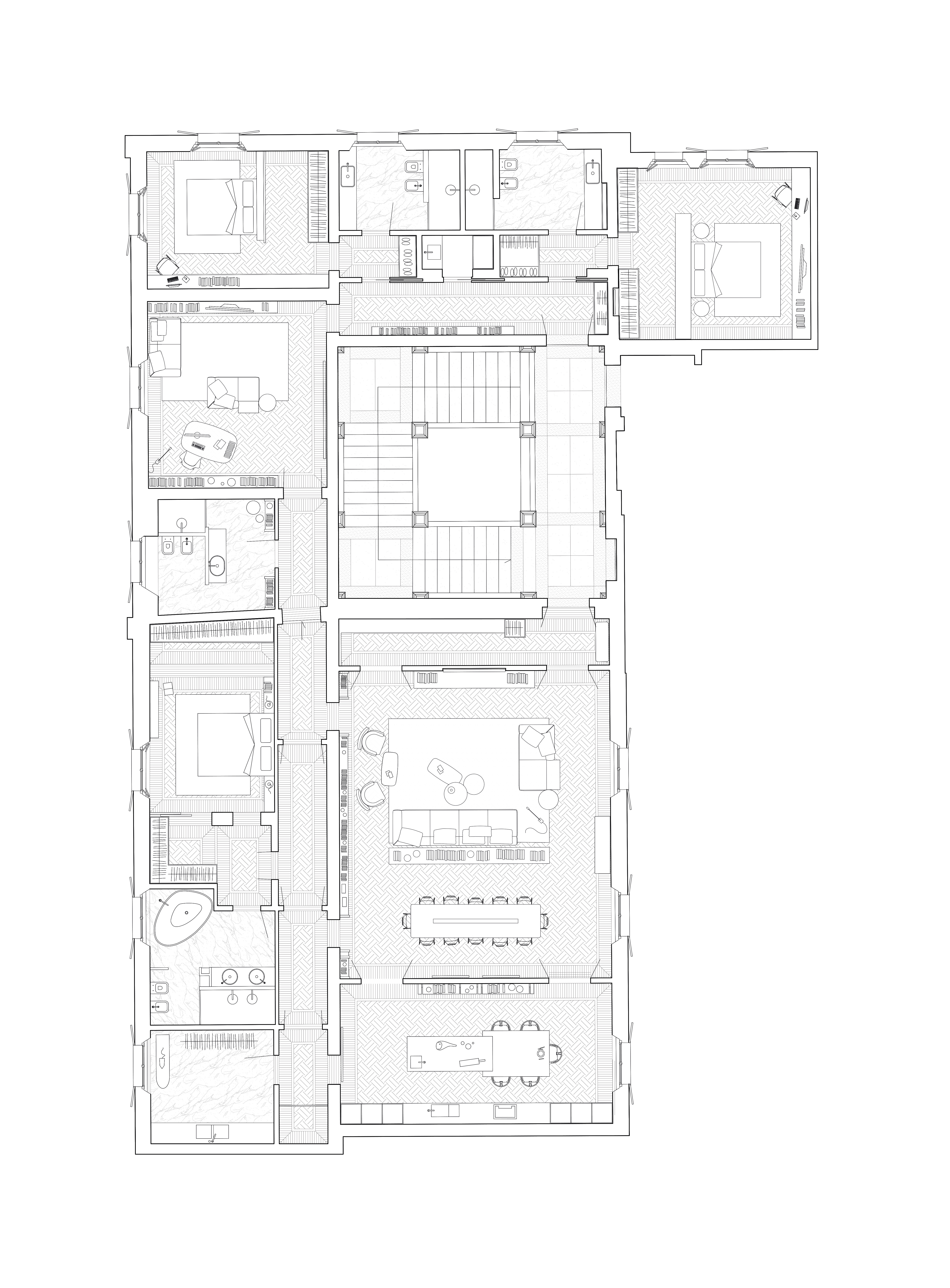
Apartments are organised on two floors with a densely planted, communal courtyard at the centre of the plan which the residents have been encouraged to adopt, nurture, and add to. Private terraces and courtyards provide the homes with air and light, as well as a useful utility space.
The new buildings have brickwork facades detailed to give elaboration and textural effect that reference the Victorian industrial heritage of the site with vertical pilasters and twisted soldier course friezes. Windows and infill cladding elements are timber, and metalwork uses twisted bars that allude to cast-iron railings which formed part of the domestic architecture of the area.
